Pontchâteau (44160)

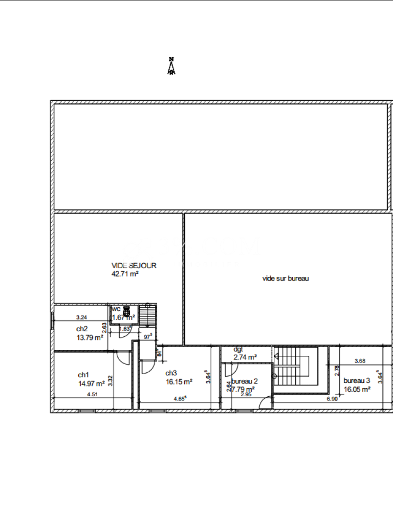
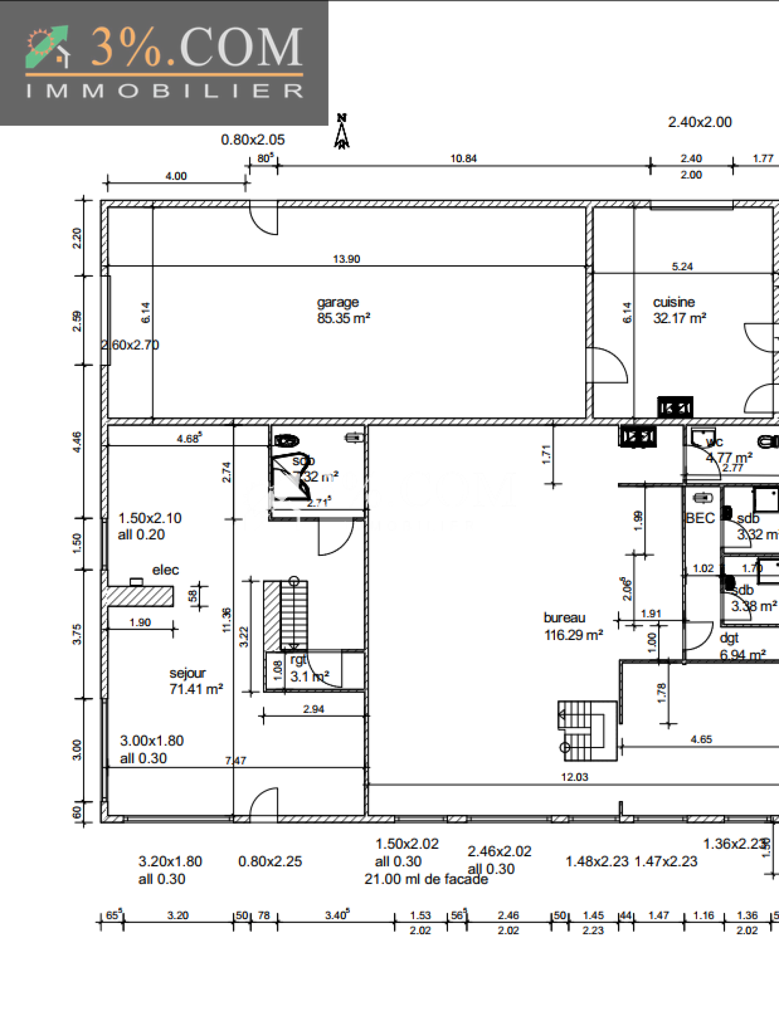
Local d'activité 534 m²

428 200 € HT *
Réf V3540054810

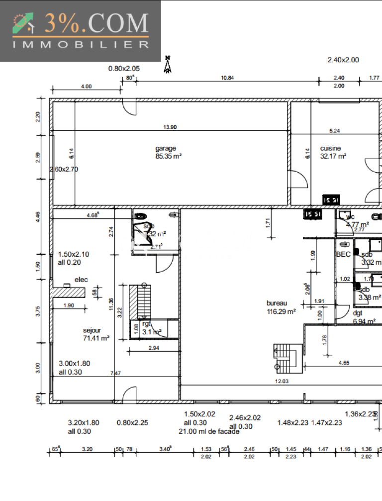
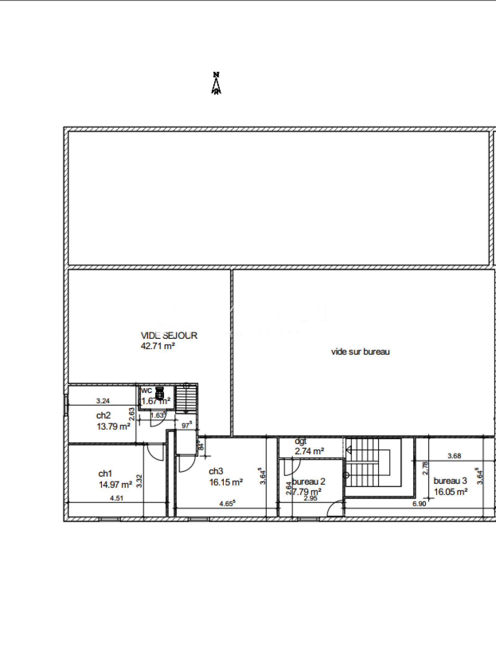
Local d'activité d'une surface de 534 m² sur 2 niveaux.

Situé sur Pontchâteau en bordure de la RN165 axe Nantes / Vannes.

Travaux de réaménagement prévus :

- Voirie

- Parking extérieur

- Clôtures

- Portail extérieur

- Nouveaux raccordements (goudron, assainissement, eau, électricité, téléphone, éclairage parties communes).

Prix : 428 200 € HT, honoraires à la charge du vendeur.

Pour tous renseignements et visites : REF286

Fabrice CHAUVIN - 06 95 38 14 70

3%.COM IMMOBILIER.

18 Bd Jean Mermoz

44600 Saint-Nazaire

Annonce proposée par un agent commercial

Bilan énergétique

Diagnostics énergetiques
A propos de ce bien Caractéristiques de ce bien
  • Surface 534 m²

Financier

Informations financières
Prix de vente HT honoraires inclus 428 200 €
CHAUVIN Agence

* HT : Hors Taxes