+9
Lampertheim (67450)

Appartement 3 pièce(s) 3 chambre(s) 60.62 m²

1
1
216 300 €
Réf V1000044880
!!! DÉJÀ VENDU !!!
3%.COM - Situé à LAMPERTHEIM (Rue de Pfulgriesheim) , bel appartement duplex de 3 pièces de 61m² situé au 2ème et dernier étage sans ascenseur --- un emplacement de parking couvert et une cave en sous-sol complètent ce bien ---
--- Copropriété bien tenue de 2 étages érigée dans un corps de ferme rénové.
--- Vous recherchez un logement fonctionnel, sans travaux, une pièce de vie spacieuse et lumineuse aménagée avec goût, proche de toutes commodités, alors n'hésitez pas et venez visiter cet appartement.
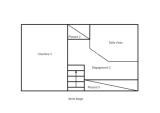
Composition:
--- Au premier niveau.
-- 1 dégagement équipé de rangement.
-- 1 espace salon/salle à manger de 31m² au sol.
-- 1 cuisine équipée ouverte sur le salon/salle à manger.
-- 1 pièce faisant office de chambre (8m² au sol).
-- 1 chambre (11m² hab/15m² au sol).
-- 1 buanderie/wc.
--- Au deuxième niveau.
-- 1 dégagement/mezzanine pouvant faire office de bureau et équipé de rangement.
-- 1 pièce faisant office de chambre (13m² au sol).
-- 1 salle d’eau (baignoire, lavabo)
Autres informations:
-- 1 place de parking couverte.
-- 1 cave.
-- Bien soumis à la copropriété.
-- La copropriété est constituée de 18 logements sur 4 bâtiments.
-- 61m² habitables / 95m² au sol.
-- Charges courantes de copropriété: 114€/mois, (électricité communs, chauffage, eau froide, honoraires syndic, assurance copro, etc...) soit 1368€/an.
-- Chaudière fioul collective.
-- Taxe foncière: 331€
-- DPE: D.
-- Aucunes anomalies aux diagnostics (électrique, amiante, plomb).
-- Proche de toutes commodités (restaurants, boulangerie, médecin, dentiste, établissements scolaires de la maternelle au collège).
--- Principales distances:
Truchtersheim: 11 min, 8 km.
Strasbourg centre: 16 min, 15 km.
Schilt Parc Europ Entrep: 11 min, 8 km.
Oberhausbergen: 16 min, 8 km.
Vendenheim (zone commerciale): 6 min, 3 km
--Contactez Sébastien au 03 88 69 62 46 ou 06 62 39 00 28.
Du lundi au samedi de 9h00 à 19h00.
Agent Commercial en Immobilier, inscrit au RSAC Strasbourg No 797 569 951.
-- Agence ROTH IMMOBILIER, RCS 803 863 638, franchisé 3%.COM.
-- Réseau national à honoraires réduits: 3% TTC

Annonce proposée par un agent commercial


Les informations sur les risques auxquels ce bien est exposé sont disponibles sur le site Géorisques

Bilan énergétique

Diagnostics énergetiques
A propos de ce bien Caractéristiques de ce bien
  • Surface 60,62 m²
  • carrez 61 m²
  • séjour 23,50 m²
  • 3 chambre(s)
  • 1 salle(s) d'eau
  • cuisine américaine (équipée)
  • Chauffage collectif : radiateur (fioul)
  • 1 parking(s)
  • 2 niveau(x)
  • 2ème étage
  • 2 étage(s)
  • cave
  • interphone

Info copro

Copropriété
  • Copropriété Oui
  • Lot n° 219
  • Nombre de lots 62
  • Quote part annuelle des charges 1 368 €

Financier

Informations financières
Prix de vente honoraires TTC inclus 216 300 €
Prix net vendeur 210 000 €
Prix de vente honoraires TTC exclus 210 000 €
Honoraires TTC à la charge acquéreur 3 %
Charges 114 €
Taxe foncière annuelle 331 €

Simulation

Calcul des mensualités
* Champs obligatoires
BELNY Agence