+9
Einville-au-Jard (54370)

Maison 5 pièce(s) 2 chambre(s) 85 m²

1
160 m²
129 500 €
Réf 520

L'agence 3%.Com Immobilier, Séverine Boucher, vous propose en exclusivité cette maison de 85m², idéal primo-accédant, proche toute comodité. A 10 mn de Lunéville, 30 mn de Nancy.

Cette maison indépendante plaiera sans aucun doute pour un premier achat. Habitable de suite.

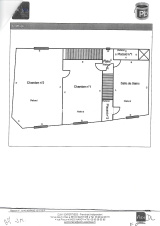
L'entrée de 7m² environ permet du rangement et débouche sur une jolie pièce de vie ouverte d'environ 38m², très lumineuse. Avec une cuisine ouverte et équipée.  Une buanderie et un WC complète ce niveau.

A l'étage : une SDE d'environ 10m² avec douche, wc et placard de rangement. Deux chambres en enfilade dont  une chambre d'environ 11m² avec placard et une autre de 17m². Possibilité de mettre une cloison pour créer 2 chambres distinctes (voir le plan). Un grenier d'environ 15m² mansardé peut être aménagé pour une pièce complémentaire.

A l'arrière de la maison, un jardin de 75m² environ avec terrasse et une dépendance d'environ 20m² complète ce bien.

Chauffage electrique, possiiblité de mettre un poèle à granule ou bois, tout à l'égout. Toiture neuve 2016 (maison+dépendance). 1 cave. 1 buanderie.

Facilité de stationnement devant la maison.

Votre contact : Séverine Boucher 06.33.50.13.66.

Rsac Nnacy 533 291 894

Annonce proposée par un agent commercial

Bilan énergétique

Diagnostics énergetiques
A propos de ce bien Caractéristiques de ce bien
  • Surface 85 m²
  • terrain 160 m²
  • 2 chambre(s)
  • 1 salle(s) d'eau
  • construit en 1927
  • cuisine américaine (équipée)
  • Chauffage individuel : radiateur (gaz de ville)
  • 1 niveau(x)
  • terrasse

Financier

Informations financières
Prix de vente honoraires TTC inclus 129 500 €
Prix net vendeur 125 000 €
Prix de vente honoraires TTC exclus 125 000 €
Honoraires TTC à la charge acquéreur 3,6 %
Taxe foncière annuelle 272 €

Simulation

Calcul des mensualités
* Champs obligatoires
BOUCHER Agence