+7
Ploufragan (22440)

Maison 5 pièce(s) 4 chambre(s) 114 m²

1
1
226 m²
175 100 €
Réf V3550063281

PLOUFRAGAN – Quartier de La Ville-au-Beau - Maison contemporaine 2016 – Idéale premier achat ou investissement locatif

Située dans un environnement agréable, cette maison contemporaine construite en 2016 développe 114 m² habitables sur une parcelle d’environ 230 m².

Un bien fonctionnel, moderne et économe, parfait pour démarrer un projet immobilier sereinement.

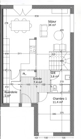
Vivable de plain-pied, elle propose au rez-de-chaussée une belle pièce de vie lumineuse de 34 m², réunissant cuisine, salle à manger et salon, une chambre, une salle d’eau, une buanderie.

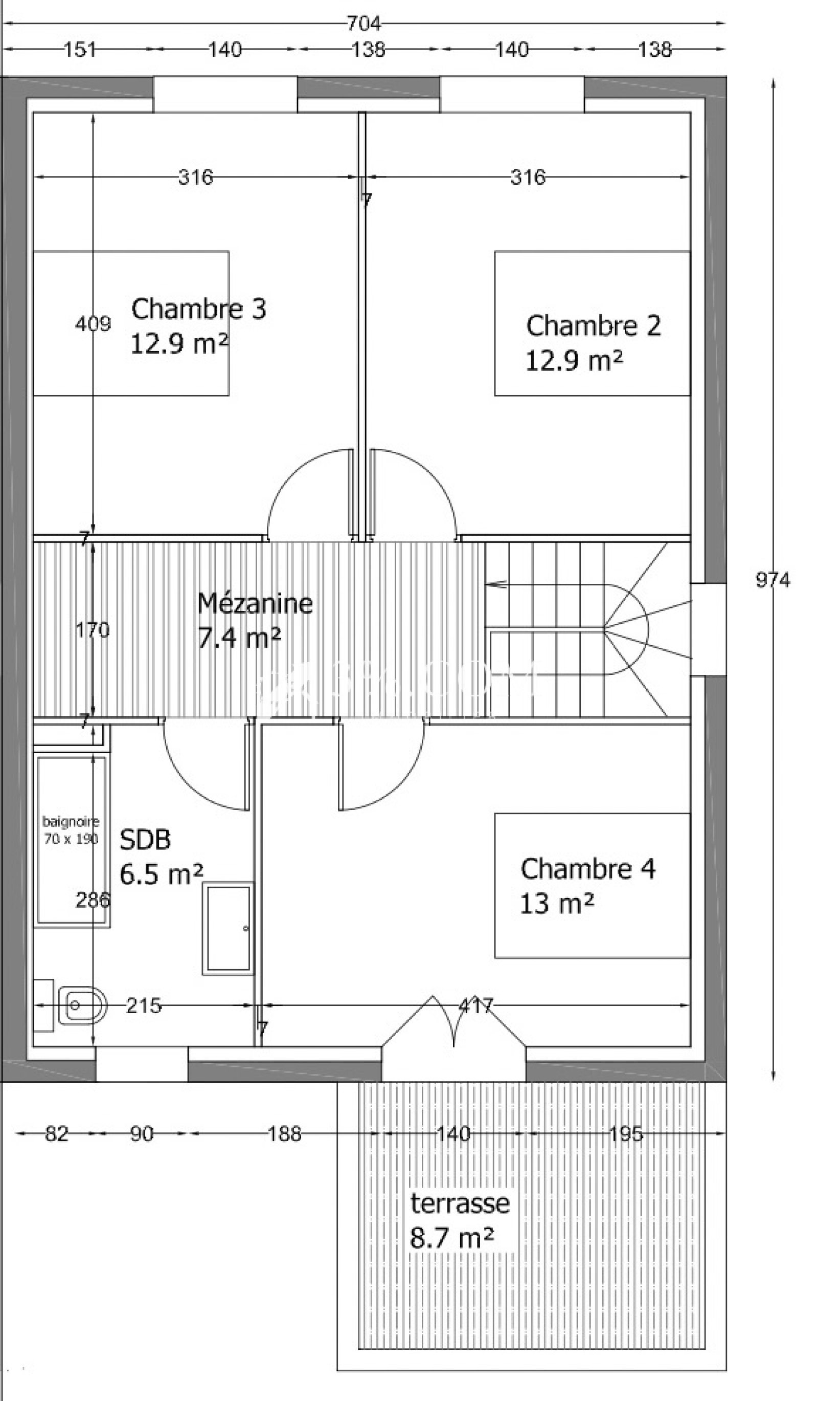
À l’étage, trois belles chambres, dont une avec terrasse, une salle de bain.

Un atout majeur : DPE classé A - Le chauffage et la production d’eau chaude sont assurés par une pompe à chaleur, garantissant confort thermique, faibles consommations énergétiques et charges maîtrisées — un véritable avantage pour un investisseur comme pour un primo-accédant.

Maison raccordée au tout-à-l’égout.

Pourquoi ce bien est intéressant ?

- Idéal pour un premier achat : maison récente, peu énergivore, vivable immédiatement.

- Parfait pour un investissement locatif : 4 chambres, DPE A, construction récente = forte attractivité locative et rentabilité sécurisée

- Intérieur à personnaliser selon vos envies pour créer un lieu qui vous ressemble.

Vidéo de présentation disponible sur demande -

Honoraires 3% TTC de la valeur du bien, les honoraires sont à la charge de l'acquéreur. Pour découvrir cette maison, contactez votre conseillère locale, Stéphanie MIOSSEC EI au 07 81 57 59 65 - RSAC de St Brieuc n° 877 562 496 - 3%.COM immobilier : réseau national à honoraires réduits à 3% TTC -

Annonce proposée par un agent commercial


Les informations sur les risques auxquels ce bien est exposé sont disponibles sur le site Géorisques

Bilan énergétique

Diagnostics énergetiques
A propos de ce bien Caractéristiques de ce bien
  • Surface 114 m²
  • terrain 226 m²
  • séjour 34 m²
  • 4 chambre(s)
  • 1 salle(s) de bain
  • 1 salle(s) d'eau
  • construit en 2016
  • cuisine américaine (semi-équipée)
  • Chauffage individuel : radiateur (pompe à chaleur)
  • 1 côté(s) mitoyen(s)
  • 2 niveau(x)

Composition

Composition de ce bien

Rez-de-chaussée

  • séjour/cuisine 34 m²
  • chambre 11.4 m²
  • salle d'eau 3.8 m²
  • entrée 7.4 m²
  • buanderie 5 m²
  • chambre

Etage 1

  • chambre 12.9 m²
  • chambre 12.9 m²
  • chambre 13 m²
  • salle de bain 6.5 m²
  • mezzanine 7.4 m²

Financier

Informations financières
Prix de vente honoraires TTC inclus 175 100 €
Prix net vendeur 170 000 €
Prix de vente honoraires TTC exclus 170 000 €
Honoraires TTC à la charge acquéreur 3 %
Taxe foncière annuelle 1 242 €

Simulation

Calcul des mensualités
* Champs obligatoires
MIOSSEC Agence