+37
Bitche (57230)

Maison 8 pièce(s) 5 chambre(s) 164 m²

2
2104 m²
1
196 000 €
Réf V1000058907

3%.COM – En EXCLUSIVITÉ Au cœur des Vosges du nord plus précisément à BITCHE sur un terrain de 21,04 ares, Maison de Maître de 164m² habitables érigée en 1936 composée de 2 appartements de type F4 --- 5 chambres--- 1 grande cour --- 1 grande cave et 1 garage.

--- Possibilité de créer une grande maison familiale ---

--- PRÉVOIR TRAVAUX DE RENOVATION ---.

--- Vous trouverez d'autres photos ainsi que des plans sur notre site troispourcent ---


-- Composition:


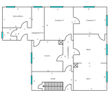
--- Au rez-de-chaussée (100m²) :


-- 1 Entrée/cage d’escalier indépendante (accès sous/sol et étage).


-- 1 dégagement/couloir (5m²) avec accès à une terrasses.

-- 1 chambre (15m²).
-- 1 chambre (12m²).
-- 1 cuisine (16m²), aménagement à prévoir.

-- 1 salon/salle à manger (24m²).

-- 1 dégagement avec accès extérieur (côté jardin).
-- 1 salle de bain (8m²).
-- 1 wc séparé.


--- Au premier étage (65m² hab/83m² au sol)

-- 1 grand dégagement/couloir (23m²) pouvant faire office de bureau.

-- 1 séjour (13,5m²).

-- 1 pièce pouvant faire office de chambre (12m²).

-- 1 pièce pouvant faire office de chambre (7m² hab/11m² sol).

-- 1 pièce pouvant faire office de chambre (7m² hab/12m² sol).
-- 1 chambre (15m²).
-- 1 cuisine (15m²), aménagement à prévoir.
-- 1 salle de bain.
-- 1 wc séparé.

--- À la Cave (de plain-pied au niveau de la cour):
-- 1 dégagement.

-- 1 grand garage avec accès cour.

-- 1 pièce chaufferie N°1

-- 1 grande pièce chaufferie N°2.

-- 1 pièce avec accès extérieur.



--- Un comble (accès par une des chambres de l’étage).

--- Extérieurs :
-- 1 allée et 1 grande cour pouvant accueillir de nombreux véhicules.
-- 1 grand jardin (terrain constructible avec possibilité de séparer une parcelle pour y construire une maison).

-- Autres informations:

-- Prévoir travaux de rafraichissement et/ou de rénovation.
-- Double système de chauffage indépendants pour chaque niveau (2 chaudières fioul).
-- Ballon tampon.

-- 2 tableaux électriques.
-- Combles isolés au sol (laine de verre)
-- Fenêtres pvc double et volets pvc.
-- DPE : G.

-- Logement à consommation énergétique excessive : classe G



-- Principales distances:
Hochfelden: 50 min, 48 km
Ingwiller : 31 min, 29 km.
Bouxwiller : 38 min, 35 km.
Gundershoffen : 28 min, 29 km.
Sarreguemines : 29 min, 32 km.
Haguenau : 45 min, 43 km.



--Contactez Sébastien au 03 88 69 62 46 ou 06 62 39 00 28.

Du lundi au samedi de 9h00 à 19h00.

Agent Commercial en Immobilier, inscrit au RSAC Strasbourg No 797 569 951.

-- Agence ROTH IMMOBILIER, RCS 803 863 638, franchisé 3%.COM.

-- Réseau national à honoraires réduits: 3% TTC

Annonce proposée par un agent commercial


Les informations sur les risques auxquels ce bien est exposé sont disponibles sur le site Géorisques

Bilan énergétique

Diagnostics énergetiques
A propos de ce bien Caractéristiques de ce bien
  • Surface 164 m²
  • carrez 164,39 m²
  • terrain 2 104 m²
  • 5 chambre(s)
  • 2 salle(s) de bain
  • construit en 1936
  • cuisine séparée
  • Chauffage individuel : radiateur (fioul)
  • 1 garage(s)
  • exposition Ouest
  • 2 niveau(x)

Financier

Informations financières
Prix de vente honoraires TTC inclus 196 000 €
Prix net vendeur 190 000 €
Prix de vente honoraires TTC exclus 190 000 €
Honoraires TTC à la charge acquéreur 3,16 %

Simulation

Calcul des mensualités
* Champs obligatoires
BELNY Agence