+3
Saint-Porchaire (17250)

Terrain à batir

80 500 €
Réf V5470051759

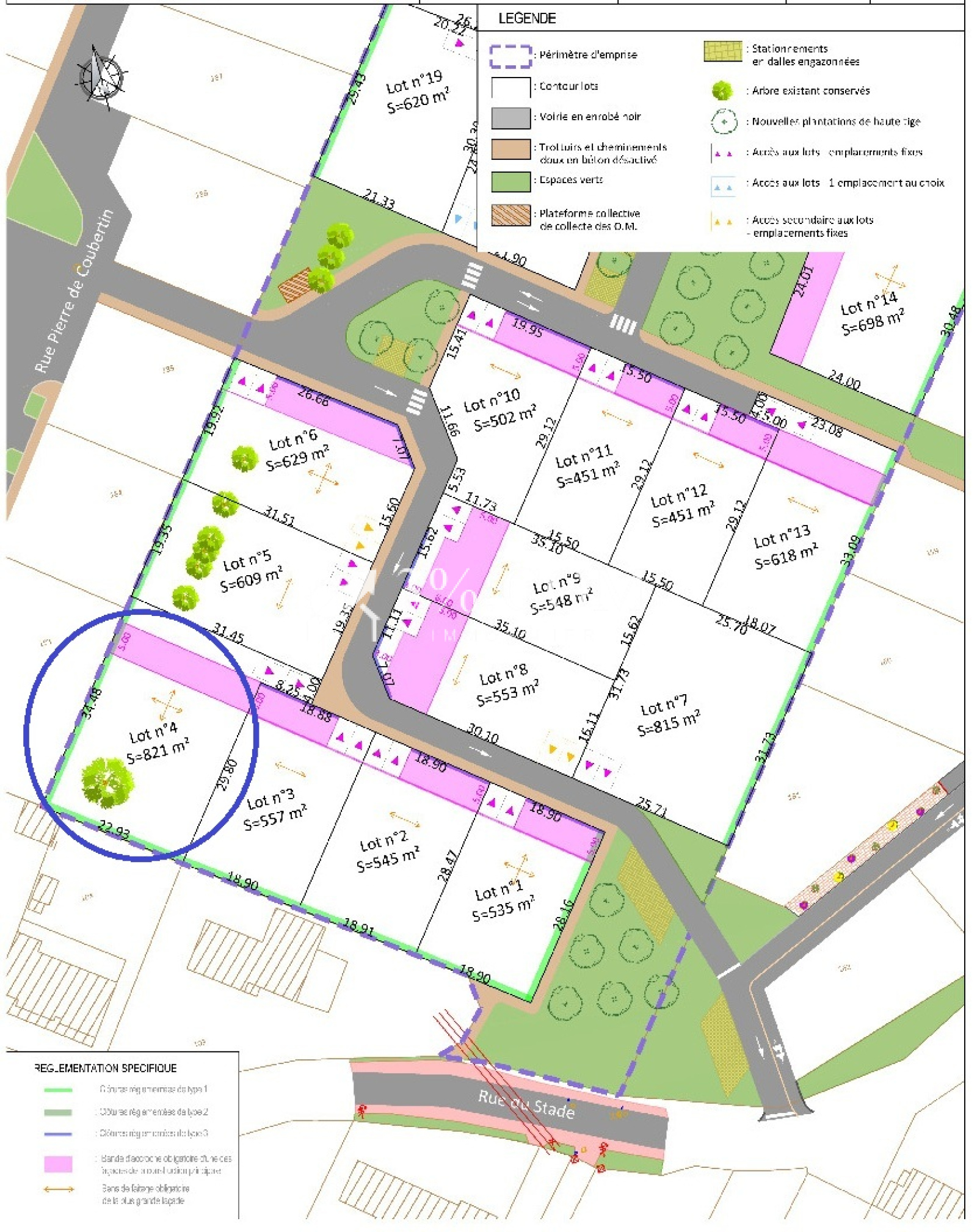
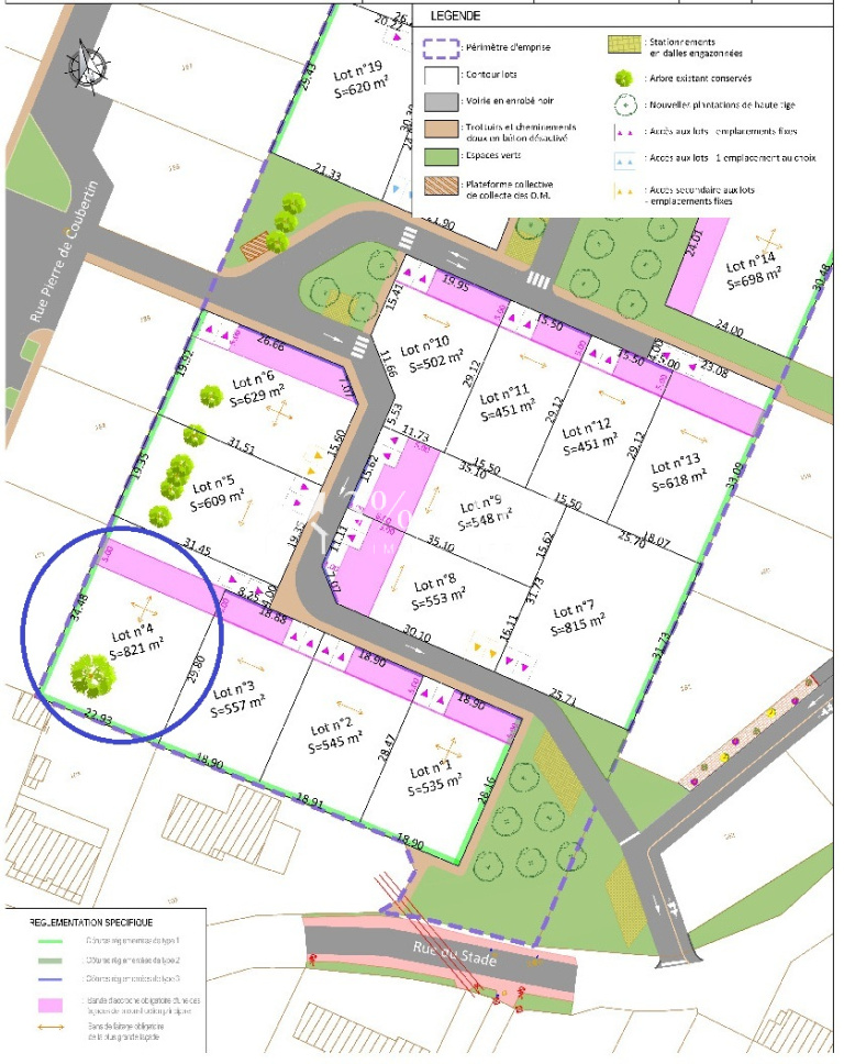
3%.COM vous présente ce terrain à bâtir siuté dans un secteur pavillonnaire récent, à 1 km du centre bourg et des commerces et services (supermarché, boulangeries, boucheries, fleuristes, garage, coiffeurs, cabinet médical, vétérinaire...) de la commune de Saint Porchaire (17250). Ce terrain, de forme RECTANGULAIRE, est libre de constructeur, viabilisé (Télécom, eau, electricité, assainissement) et présente une surface de 548 m2 offrant une superficie de plancher de 200 m2 sur une hauteur au faîtage de 9 m maximumn (R+1). Prix aménageur sans surcoût.

--- Contactez Richard ASSELIN, Gérant Immo Conseil Aquitaine, au 06 21 22 25 01 ---

SARL La Chabottière - 17350 Crazannes - RCS Saintes 477729636 - Carte professionnelle CPI 1701 2018 000 024 924 délivrée par la CCI de la Charente Maritime

3%.COM IMMOBILIER, réseau national à honoraires réduits.

Annonce proposée par un agent commercial


Les informations sur les risques auxquels ce bien est exposé sont disponibles sur le site Géorisques

Bilan énergétique

Diagnostics énergetiques
A propos de ce bien Caractéristiques de ce bien
  • terrain 618 m²

Financier

Informations financières
Prix de vente 80 500 € Les honoraires d'agence seront intégralement à la charge du vendeur
Charges 300 €

Simulation

Calcul des mensualités
* Champs obligatoires
ASSELIN Agence