+11
Hochfelden (67270)

Maison 2 pièce(s) 1 chambre(s) 48 m²

1
253 m²
69 000 €
Réf V1020057465

3%.COM l'a vendu !

EXCLUSIVITE- Maison alsacienne à rénover au centre de HOCHFELDEN

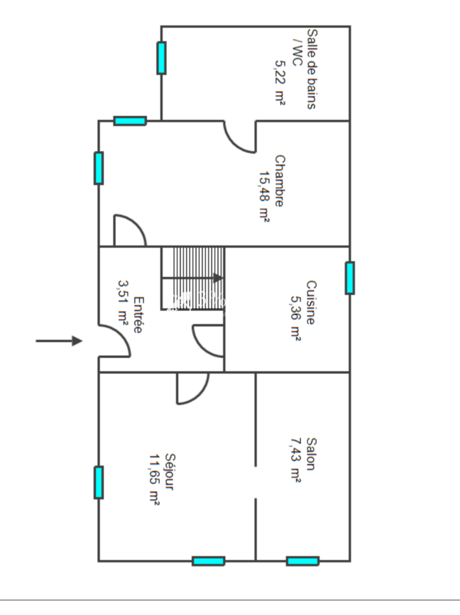
-- Sur un terrain de 2,53 ares, cette maison de plain pied de 48m2 attend une rénovation totale.

-- Un jardin et une cave complètent ce bien

--Composition ( sur 1 niveau)

- entrée

- cuisine (5,36m2)

- salon /séjour ( 19m2)

- chambre (15,48m2)

- salle de bain (5,22m2)

- escalier vers grenier

. --- A proximité de toutes les commodités ( commerces, gare...)

--- Vous recherchez une véritable qualité de vie dans une commune dynamique alors venez visiter cette maison!

-- Un beau potentiel d'aménagement.

-- Autres informations:

-- travaux de rénovation ( plancher bois, electricité , isolation , aménagement interieur ....)

--chauffage gaz ( chaudière de 2002)

- pas d'amiante

Logement à consommation énergétique excessive

-- Contactez Sandrine ROTH 3%COM au 06 58 67 64 84.

- - Agence Immobilière ROTH IMMOBILIER 3%.COM, RCS 803 863 638.

Annonce proposée par un agent commercial


Les informations sur les risques auxquels ce bien est exposé sont disponibles sur le site Géorisques

Bilan énergétique

Diagnostics énergetiques
A propos de ce bien Caractéristiques de ce bien
  • Surface 48 m²
  • carrez 48 m²
  • terrain 253 m²
  • séjour 19 m²
  • 1 chambre(s)
  • 1 salle(s) de bain
  • construit en 1850
  • cuisine séparée
  • Chauffage central : radiateur (gaz)
  • 1 niveau(x)

Financier

Informations financières
Prix de vente honoraires TTC inclus 69 000 €
Prix net vendeur 63 000 €
Prix de vente honoraires TTC exclus 63 000 €
Honoraires TTC à la charge acquéreur 9,52 %
Taxe foncière annuelle 140 €

Simulation

Calcul des mensualités
* Champs obligatoires
ROTH Agence