+15
Mommenheim (67670)

Appartement 3 pièce(s) 2 chambre(s) 67.55 m²

1
134 m²
2
216 300 €
Réf V4670061984

3%.COM EXCLUSIVITE - A Mommenheim, venez découvrir cet appartement en rez de jardin de 67m2 au sein d'une copropriété pleine de charme.

Une terrasse de 16m2, son grand jardin de 134m2 et un double garage complètent cet bien.

- Vous serez séduits par ses volumes et son jardin !

- prévoir raffraichissements de peinture et la salle de bain

--- Vous recherchez un logement dans une commune dynamique et prisée alors n'hésitez pas et venez visiter ce bien!

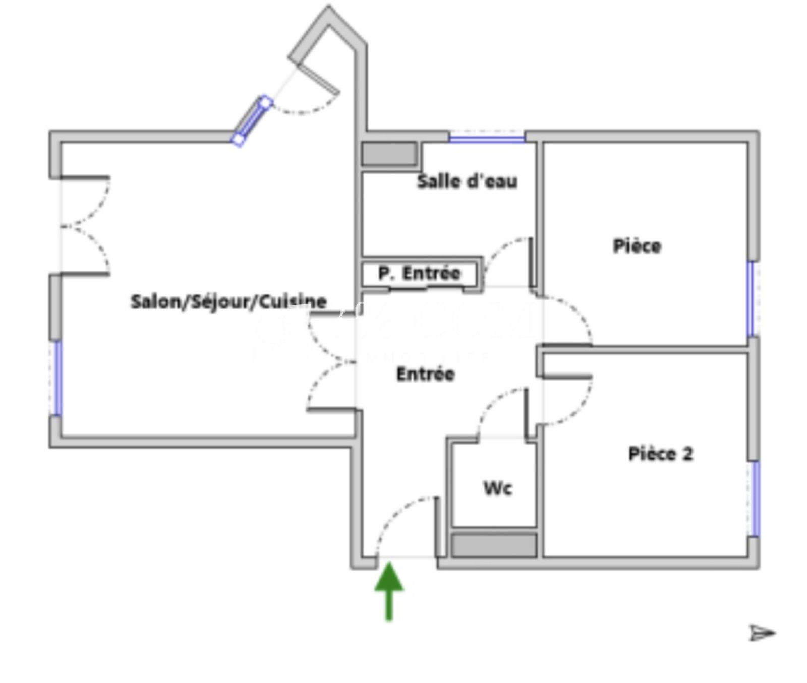
Composition:

-- 1 entrée avec placard

-- 1 espace salon/séjour/cuisine de 31 m² donnant sur une terrasse / jardin et accés garage

-- 1 cuisine équipée ouverte (four, plaque, hotte) pas d'emplacement lave vaisselle

-- 2 chambres (10 et 12m2)

-- 1 salle d'eau avec vasque et emplacement machine à laver

-- 1 toilette séparée

-- Terrasse de 16m2

-- Jardin (134m2) avec accès direct au double garage (26m2)

les +++: grand jardin - double garage - au calme

Autres informations:

- fenêtres en double-vitrage PVC à volets motorisés (3 sur 6)

- Chauffage individuel au gaz de 2012 (pas d'anomalie)

- DPE: C

-- Bien soumis à la copropriété. Elle est composée de 67 lots (21 logements)

-- Charges courantes/an de copropriété: eur 1195 /an, soit 99 eur / mois (incluant l'eau, éléctricité parties communes, assurance bâtiment, syndic).

-- Contactez Laura ROTH au 07 70 13 31 52 du lundi au samedi de 9h00 à 19h00.

-- Agence Immobilière ROTH IMMOBILIER Sarl, 3%.COM, RCS 803 863 638.

-- Agence et vitrines à Hochfelden, siège à Gimbrett-Kochersberg. -- Réseau national à honoraires réduits: 3% TTC.

Annonce proposée par un agent commercial


Les informations sur les risques auxquels ce bien est exposé sont disponibles sur le site Géorisques

Bilan énergétique

Diagnostics énergetiques
A propos de ce bien Caractéristiques de ce bien
  • Surface 67,55 m²
  • carrez 67,55 m²
  • terrain 134 m²
  • séjour 31,35 m²
  • 2 chambre(s)
  • 1 salle(s) d'eau
  • construit en 1998
  • cuisine américaine (équipée)
  • Chauffage individuel : chaudière (gaz)
  • 2 garage(s)
  • exposition Sud
  • 2 côté(s) mitoyen(s)
  • 1 niveau(x)
  • 1er étage
  • 1 étage(s)
  • vue Jardin
  • terrasse
  • interphone
  • accès handicapé

Info copro

Copropriété
  • Copropriété Oui
  • Nombre de lots 69
  • Quote part annuelle des charges 1 195 €
  • Plan de sauvegarde Non
  • Statut du syndic Pas de procédure en cours

Financier

Informations financières
Prix de vente honoraires TTC inclus 216 300 €
Prix net vendeur 210 000 €
Prix de vente honoraires TTC exclus 210 000 €
Honoraires TTC à la charge acquéreur 3 %
Charges 99,58 €
Taxe foncière annuelle 418 €

Simulation

Calcul des mensualités
* Champs obligatoires
ROTH Agence