+2
Beinheim (67930)

Appartement 3 pièce(s) 2 chambre(s) 87.78 m²

1
Balcon
1
Réf V4380058196

--3%.COM immobilier-- vous propose de découvrir dans la commune dynamique de Beinheim, un appartement 3 pièces des années 1992.

Situé au premier étage d’un petit immeuble idéalement situé composé de seulement 6 logements.

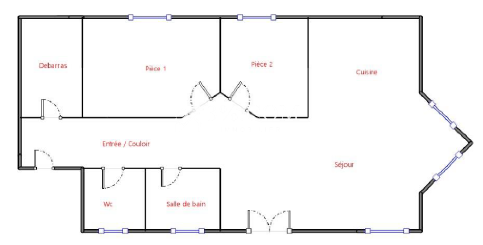
Description du bien :


-- Avec une superficie de plus de 87.78 m² au total,

Celui-ci dispose d’une cuisine équipée ouverte sur un spacieux salon séjour de plus de 24m² bien agencé avec accès sur le balcon, de deux chambres, et d’une salle de bain avec douche et baignoire ainsi qu’un toilette séparé.

Un débarras d’environ 7m² est également disponible avec espace de rangement, emplacement machine à laver prévu et chaudière individuelle au gaz ainsi qu’un adoucisseur d’eau.


L’ensemble comporte une place de stationnement privative.


A propos de la copropriété :

Pas de procédure en cours

Nombre de lots :

Charges prévisionnelles annuelles : 465 €

Date de réalisation du diagnostic énergétique : C en date du 14/11/2024

Mandat : 35083

Taxe foncière 2024 : 412€

Le bien se situe dans un secteur proche de toutes commodités, écoles, commerces, boulangeries, banque, médecins et autres.



Pour de plus amples informations ou pour prendre rendez-vous, veuillez contacter Christelle Hossann 3%.com immobilier au 07.69.03.49.29 ou envoyer un e-mail : hc.troispourcent@gmail.com

Du lundi au vendredi de 9h à 19h.

Samedi 9h à 12h.

Agent indépendant 3%.com immobilier RSAC Strasbourg N°897.775.540

Annonce proposée par un agent commercial

---------------------------------

Ein deutscher Ansprechpartner steht Ihnen für Informationen via WhatsApp zur Verfügung.

Annonce proposée par un agent commercial

Bilan énergétique

Diagnostics énergetiques
A propos de ce bien Caractéristiques de ce bien
  • Surface 87,78 m²
  • séjour 24 m²
  • 2 chambre(s)
  • 1 salle(s) de bain
  • construit en 1992
  • cuisine américaine (équipée)
  • Chauffage individuel : chaudière (gaz de ville)
  • 1 parking(s)
  • 1 niveau(x)
  • 1er étage
  • 2 étage(s)
  • balcon
  • interphone

Composition

Composition de ce bien

Rez-de-chaussée

  • salon/sejour 24.42 m²
  • cuisine 12.93 m²

Info copro

Copropriété
  • Copropriété Oui
  • Lot n° 3-11
  • Nombre de lots 2
  • Quote part annuelle des charges 465 €
  • Plan de sauvegarde Non
  • Statut du syndic Pas de procédure en cours

Financier

Informations financières
Prix net vendeur 150 000 €
Taxe foncière annuelle 412 €

Simulation

Calcul des mensualités
* Champs obligatoires
HOSSANN Agence