+10
Nancy (54000)

Appartement 4 pièce(s) 1 chambre(s) 48.08 m²

1
Ascenseur
1
Réf 169

3% Lorraine Immo, Séverine Boucher, vous propose cet appartement F2 de 48,08m² au CLOS DE MEDREVILLE à Nancy. A proximité de l'IUT Charlemagne, à côté du RESTO UNIVERSITAIRE. Idéal invesstiseur ou primo accédant. Frontalier à la commune de Laxou, axe autoroutier à proximité.

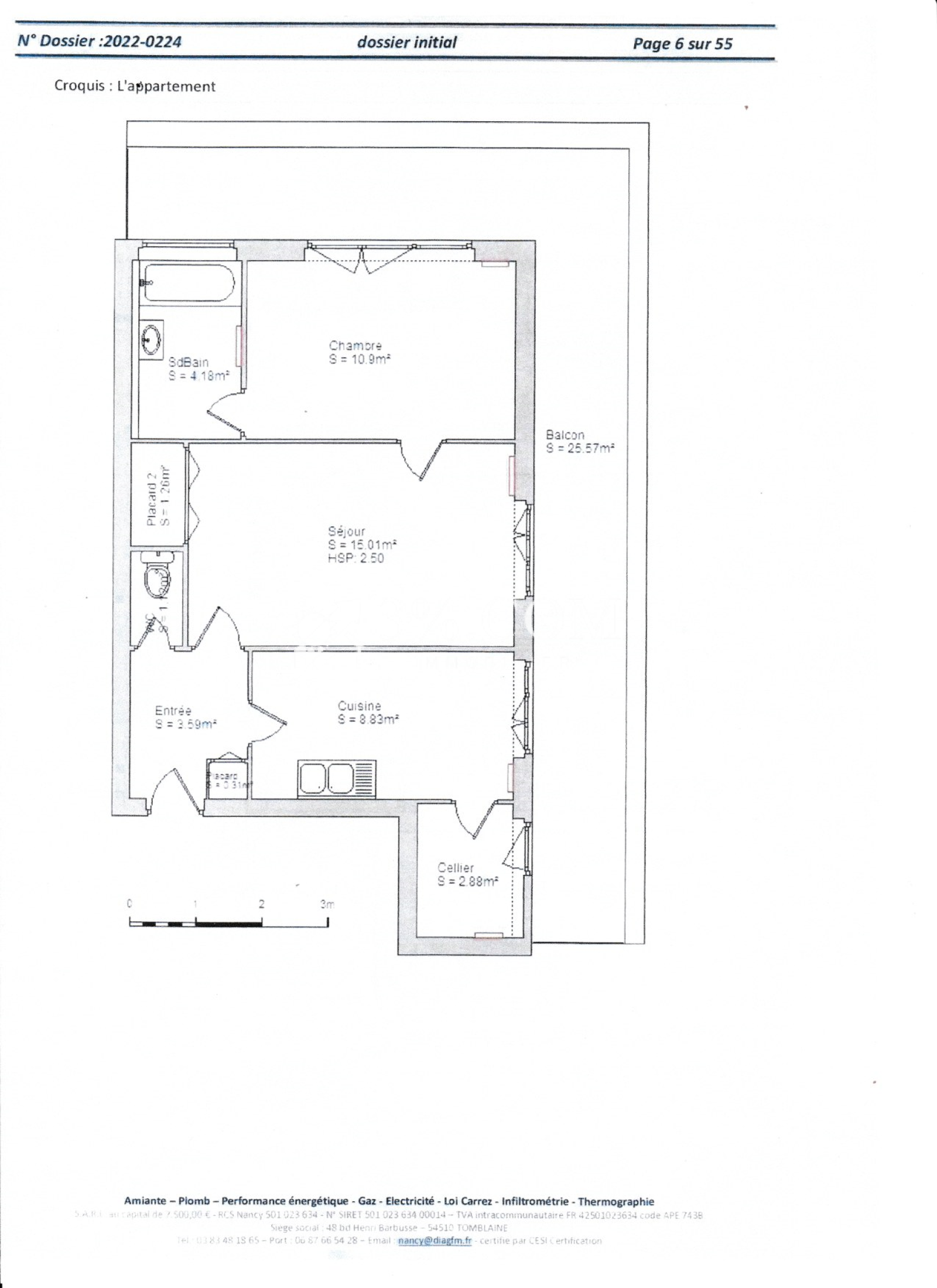
Cet appartement de 48,08m² (loi Carrez) se situe au 1er étage surélevé.

Une entrée ouvre sur un salon-séjour de 15m² très lumineux. Une Chambre de 10m² avec une salle de bain et WC séparé. 1 cuisine séparée avec un cellier. Un très grand balcon en forme de L de 25,57m² complète ce bien.

Cet appartement fait partie d'un ensemble immobilier de la Résidence Le Clos de Médreville situé à Nancy, elle est composée d'un batîment Tour et de 16 bâtiments d'habitation. Conçu par Henri Prouvé entre 1969 et 1973.

Il fait partie des plus importantes copropriétés résidentielles de la Métropole avec 387 logements. Géré par un syndic professionnel.

Possédant 1 place de parking souterraine (possibilité d'en acquérir d'autre). Résidence sécurisée, avec un digicode, un concierge et caméra de surveillance. Au coeur de la Résidence un grand parc de verdure privé permet de profitez d'un extérieur exceptionnel au coeur de Nancy. Immeuble de 6 étages + sous-sol et parking souterrain avec un ascenseur. Quartier calme.

Chauffage collectif au gaz avec répartiteur de frais de chauffage (RFC) ce qui permet de payer uniquement les consommation du F2.

Simple vitrage. Taxe foncière de 793€. 2 lots (appartement + place de parking)

Charge de copropriété 405€/trimestre comprenant eau chaude, eau froide, chauffage, entretien des communs, ascenseur, espaces verts, conciergerie, parking et syndic.Et fond de travaux annuels de 39,50€.

Appartement libre. Le loyer était de 473€ + 125€ de charges.

Votre contact : Séverine BOUCHER 3%.Com Immobilier 06.33.50.13.66.

Rsac Nancy 533 291 894

VOUS VENDEZ APPELEZ MOI - HONORAIRES REDUITS DE 3%* - Estimation GRATUITE

Annonce proposée par un agent commercial

Bilan énergétique

Diagnostics énergetiques
A propos de ce bien Caractéristiques de ce bien
  • Surface 48,08 m²
  • carrez 48,08 m²
  • 1 chambre(s)
  • 1 salle(s) de bain
  • construit en 1970
  • cuisine séparée
  • Chauffage collectif : radiateur (gaz de ville)
  • exposition Nord-Sud
  • 8 niveau(x)
  • 6 étage(s)
  • ascenseur
  • terrasse
  • interphone

Info copro

Copropriété
  • Copropriété Oui
  • Nombre de lots 2

Simulation

Calcul des mensualités
* Champs obligatoires
BOUCHER Agence