+22
Eschbourg (67320)

Maison 6 pièce(s) 4 chambre(s) 166.25 m²

1
1
2
107 000 €
Réf V3480059084

3%.COM En EXCLUSIVITÉ à GRAUFTHAL ESCHBOURG, maison individuelle d’environ 166m² habitables sur 6a97 + comble aménageable --- 4 chambres ---- Une Dépendance --- Un garage --- Une Cave et un atelier.

--- Vous recherchez une véritable qualité de vie loin des tumultes et du bruit de la ville ou poser vos valises, un jardin, des dépendances offrant de nombreuses possibilités, alors venez visiter cette maison.


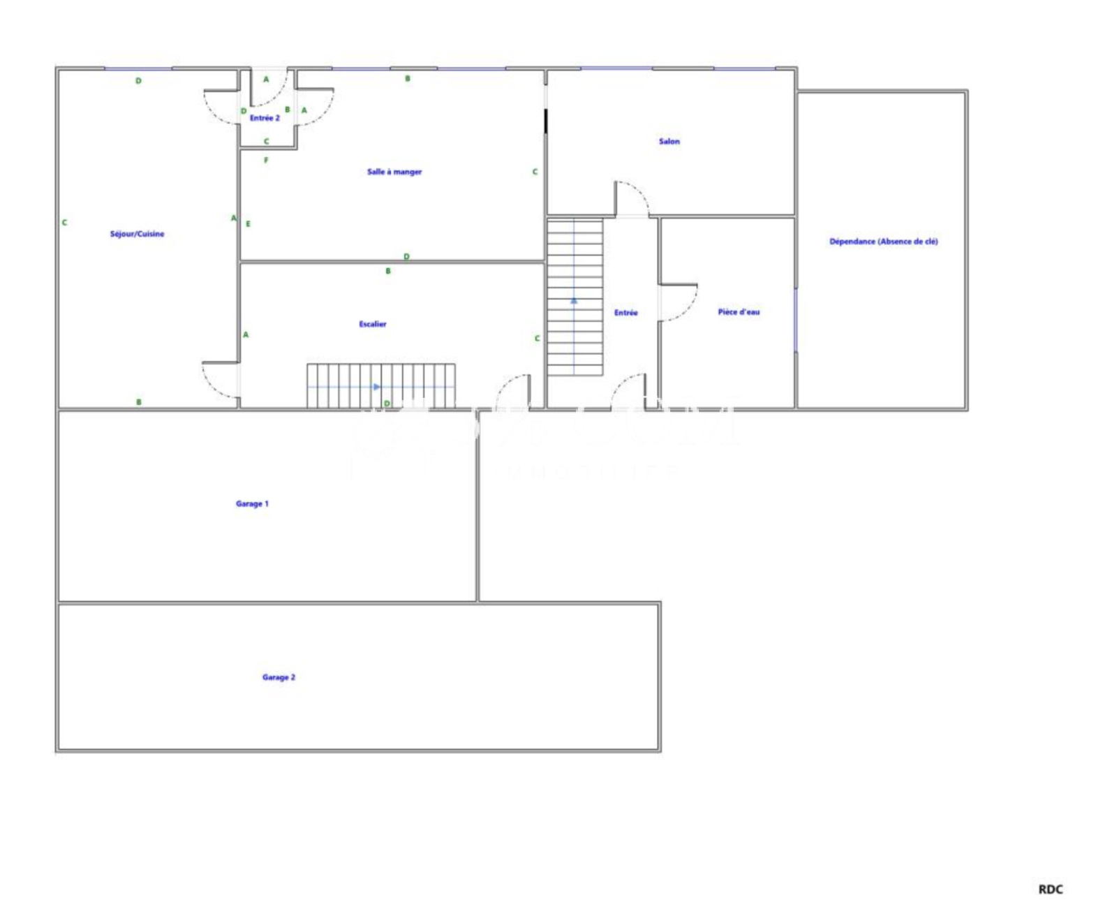
--- Au rez-de chaussée:
-- 1 entrée/couloir.
-- 1 pièce avec un point d’eau et un toilette.
-- 1 espace séjour(15 m²).
-- 1 salon (20m²).
-- 1 cuisine (14m²)
-- 1 grand dégagement (16m²) donnant accès à la cave.

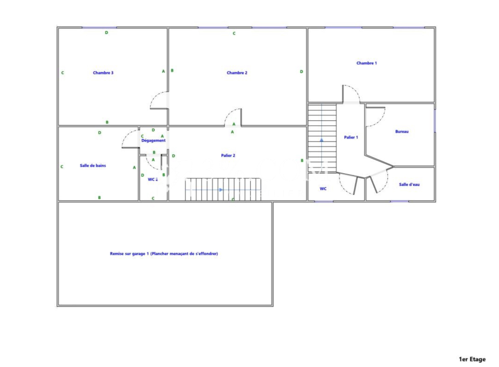
--- Au 1er étage:
-- 4 chambres dont deux en enfilade.

-- 1 salle d’eau (douche, lavabo simple vasque).
-- 2 toilette séparés.
-- 1 salle de bain (baignoire, simple vasque)

--- Un comble aménageable (~53m² habitables) ---
--- Une cave.

--- Une dépendance (~42m²) ---
--- Un atelier coller à l’habitation.
--- Un garage.

--- Informations diverses :
-- Surface terrain 6a97
-- Chauffage bois.
-- Ballon électrique pour l’eau chaude.
-- Situation au calme.
-- Cour pavée.
-- Un garage dans la cour (porte manuelle).
-- Jardin clôturé.
-- Taxe foncière : 713 euros.
-- DPE: F.
-- Fenêtres bois et pvc double vitrage et volets pvc.
-- Le bien présente un large éventail de possibilités, offrant un fort potentiel d’aménagement et de valorisation (possibilité de créer 2 logements).

-- Principales distances:
Saverne: 21 min, 17 km.
Ingwiller: 24 min, 23 km.
Phalsbourg : 11 min, 10 km.
Hochfelden: 29 min, 29 km.

--Contactez Célia MANGIN 07 78 12 20 62.
Du lundi au samedi de 9h00 à 19h00.
Agent Commercial en Immobilier, inscrit au RSAC Strasbourg No 809 126 998.
-- Agence ROTH IMMOBILIER, RCS 803 863 638, franchisé 3%.COM.
-- Agence immobilière à honoraires réduits : 3% TTC.

Annonce proposée par un agent commercial


Les informations sur les risques auxquels ce bien est exposé sont disponibles sur le site Géorisques

Bilan énergétique

Diagnostics énergetiques
A propos de ce bien Caractéristiques de ce bien
  • Surface 166,25 m²
  • carrez 166,25 m²
  • séjour 20 m²
  • 4 chambre(s)
  • 1 salle(s) de bain
  • 1 salle(s) d'eau
  • construit en 1947
  • Chauffage individuel : poêle (bois)
  • 2 garage(s)
  • 2 niveau(x)

Financier

Informations financières
Prix de vente honoraires TTC inclus 107 000 €
Prix net vendeur 101 000 €
Prix de vente honoraires TTC exclus 101 000 €
Honoraires TTC à la charge acquéreur 5,94 %
Taxe foncière annuelle 713 €

Simulation

Calcul des mensualités
* Champs obligatoires
MANGIN Agence