+10
Westhoffen (67310)

Maison 4 pièce(s) 3 chambre(s) 110 m²

76 000 €
Réf V3480062092

3%.COM - A WESTHOFFEN, dans un jolie village alsacien, redonnez vie à cette charmante maison de village de 105m² à rénover totalement avec une dépendance attenante.

--- À saisir au prix de 76 000€ FAI

--- LA MAISON EST A RÉNOVER EN TOTALITÉ (électricité, fermetures, sanitaire, chauffage, cuisine, salle de bains, murs, sols, etc...)

--- Vous recherchez un bien à rénover totalement, à transformer à vos goûts, la qualité de vie d'un petit village, alors n'hésitez pas et venez visiter ce bien.

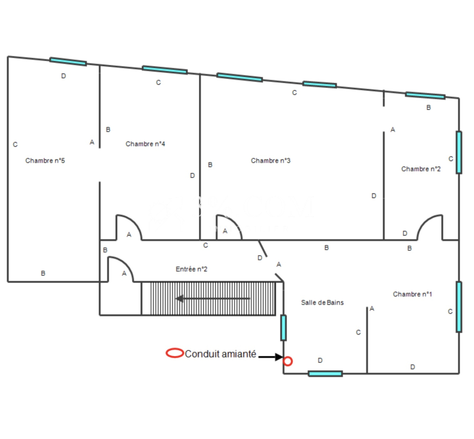
--- Vous trouverez des croquis et d'autres photos sur notre site troispourcent.

--- Maison (environ 115 m²)
- Année de construction : 1930
- 5 pièces.
- 1 cour
- 1 cave

--- Dépendance (environ 100m²) :
- 1 atelier.
- 1 pièce.
- 1 garage.

Autre information:
- Présence de plomb - déclarations effectuées auprès de l’ARS.
-Beau potentiel pour cet ensemble qui nécessite des travaux complets de rénovation et d'aménagement.

-- Principales distances:
Molsheim : 15 min, 11 km.
Strasbourg centre: 29 min, 27 km.
Saverne : 25 min, 19 km.
Wasselonne : 8 min, 5 km.

--Contactez Célia au 07.78.12.20.62
Du lundi au samedi de 9h00 à 19h00.
Agent Commercial en Immobilier, inscrit au RSAC Strasbourg No 809 126 998.
-- Agence ROTH IMMOBILIER, RCS 803 863 638, franchisé 3%.COM.
-- Réseau national à honoraires réduits: 3% TTC

Annonce proposée par un agent commercial

Bilan énergétique

Diagnostics énergetiques
A propos de ce bien Caractéristiques de ce bien
  • Surface 110 m²
  • carrez 115,60 m²
  • 3 chambre(s)
  • construit en 130

Financier

Informations financières
Prix de vente honoraires TTC inclus 76 000 €
Prix net vendeur 70 000 €
Prix de vente honoraires TTC exclus 70 000 €
Honoraires TTC à la charge acquéreur 8,57 %
Taxe foncière annuelle 456 €

Simulation

Calcul des mensualités
* Champs obligatoires
MANGIN Agence