+16
Ludres (54710)

Maison 8 pièce(s) 3 chambre(s) 145 m²

1
331 520 €
Réf 865

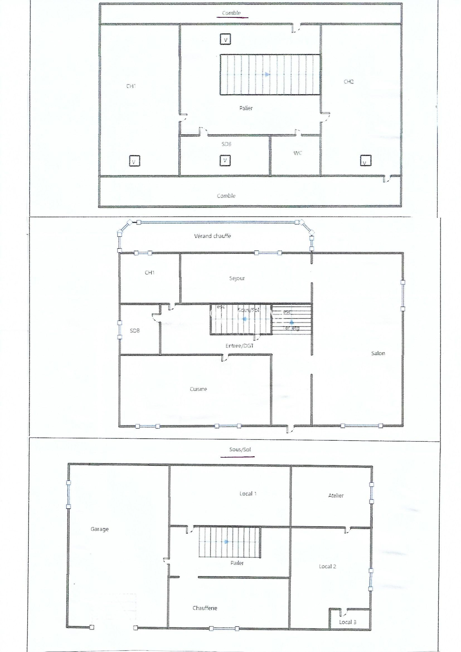
Votre agence3%.Com Immobilier, Séverine Boucher, vous propose en EXCLUSIVITE, ce bien à visiter sans tarder. Maison indépendante dans impasse à Ludres, à 05 mn de Houdemont, à 15 mn de Nancy-centre. Sur l'axe autoroutier METZ-EPINAL.Proche toutes commodités (écoles, commerces etc....). Bien des années 75 entièrement rénové et repensé avec goût (toit, fenêtres, cuisine, sols etc...).Posée au milieu d'un terraind'environ 436 m². Surélevée cette maison possède tous les atouts pour se sentir bien.

Aucun travaux à prévoir - vous posez vos bagages !

Au 1er niveau : une entrée nous fait découvrir un très grand salon/séjour d'environ 33m² très lumineux et traversant. Un balcon complète cette pièce?

Un second petit salon jouxte le 1er d'environ 13m² et peut être refermé pour créer une chambre au RDC.

La cuisine d'environ 20m² a été entièrement refaite. Un bureau d'environ 9.5m² peut aussi servir de 4ème chambre d'appoint.

Une SDE+ wc suspendu complètent ce niveau.

A l'étage : les combles ont été totalement réaménagées et réhaussées. Un très beaux volumes et de grandes chambres vous sont proposées. Une chambre d'environ 20m² et une chambre de 24m² et une SDE + wc séparé.

Une mezzanine permet d'avoir un espace de rangement ou de repos compémentaire.

On accède au sous-sol (environ 100m²) par un escalier central ou sont proposées 3 pièces distinctes permettant de faire des ateliers, une buanderie, un cellier et bien d'autres choses encore. Un sauna-Hammam est aussi installé pour un espace détente. Attenant à la maison et accessible par ce sous-sol un long garage d'environ 20m² avec portail motorisé.

Double vitrage partout, toiture refaite et isolée il y a 4 ans. Façade recrépit en 2000. Volets en aluminium-laqués et plafond tendu au RDC. Les murs extérieurs sont doublés et isolés.

Chauffage à condensation (2009) au gaz centralisé et dans les chambres climatisation en plus. Plus une très grande et belle cheminée permet un second mode de chauffage pour les flambées d'hiver.

Côté cours : 3 espaces distincts permettent de vaquer à différents moments de la journée à vos ocuupations. Un salon d'été pour pdj. Une véranda fermée d'environ 25m² et une terrasse avec une pergola. Sur le côté de la maison un jardin-potager d'environ 136m² avec une balançoire permettent de profiter des belles saisons.

Tout à l'égout. Taxe foncière 1378€.

Décorée avec goût cette demeure ne vous laissera pas indifférents. Elle peut aussi être repensée en modulant certaines pièces en fonction de vos besoins.

Votre contact : Séverine Boucher 0633501366

Rsac Nancy 533 291 894

Annonce proposée par un agent commercial


Les informations sur les risques auxquels ce bien est exposé sont disponibles sur le site Géorisques

Bilan énergétique

Diagnostics énergetiques
A propos de ce bien Caractéristiques de ce bien
  • Surface 145 m²
  • 3 chambre(s)
  • 1 garage(s)
  • exposition Est-Ouest
  • 1 niveau(x)

Financier

Informations financières
Prix de vente honoraires TTC inclus 331 520 €
Prix net vendeur 320 000 €
Prix de vente honoraires TTC exclus 321 920 €
Honoraires TTC à la charge acquéreur 2,98 %
Taxe foncière annuelle 1 378 €

Simulation

Calcul des mensualités
* Champs obligatoires
BOUCHER Agence