+5
Cogolin (83310)

Appartement 5 pièce(s) 3 chambre(s) 92.95 m²

1
1
391 400 €
Réf V4290059697

3%. com L´IMMOBILIER A HONORAIRES FIXES DE 3% vous présente ce bien sur COGOLIN dans le golfe de SAINT TROPEZ.

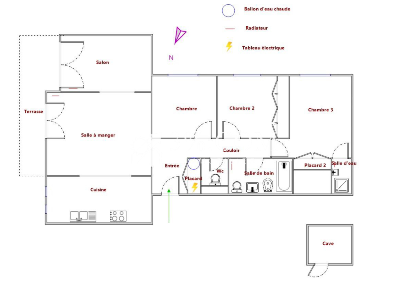
Tres agréable et confortable appartement ( avec 3 belles chambres ) de 93M2 type 5 avec une très belle hauteur sous plafond (potentiel mezzanine) se composant d'une grande cuisine équipée ouverte sur salon et salle à manger donnant sur balcon et terrasse.

Suite parentale avec SDE et placard, 2 chambres ind, SDB avec WC, autre wc indépendant. Cave individuelle. Vidéo et visite virtuelle sur demande via WhatsApp.

Le  privilège d'un grand espace avec un beau potentiel évolutif en fonction des besoins et de la famille.

APPARTEMENT FAMILIAL ou INVESTISSEMENT pour logement saisonnier.

Vous pouvez me joindre au 0611646271 VALÉRIE GILLIOT RSAC FREJUS 442 272 779 au plaisir d'échanger pour vos projets.

Annonce proposée par un agent commercial


Les informations sur les risques auxquels ce bien est exposé sont disponibles sur le site Géorisques

Bilan énergétique

Diagnostics énergetiques
A propos de ce bien Caractéristiques de ce bien
  • Surface 92,95 m²
  • carrez 92,95 m²
  • 3 chambre(s)
  • 1 salle(s) de bain
  • 1 salle(s) d'eau
  • cuisine américaine (équipée)
  • Chauffage collectif : convecteur (autre)
  • 2ème étage
  • 2 étage(s)
  • vue Dégagée
  • cave
  • terrasse
  • interphone

Info copro

Copropriété
  • Copropriété Oui
  • Lot n° 293 et 303
  • Nombre de lots 2
  • Quote part annuelle des charges 3 000 €
  • Plan de sauvegarde Non
  • Statut du syndic Pas de procédure en cours

Financier

Informations financières
Prix de vente honoraires TTC inclus 391 400 €
Prix net vendeur 380 000 €
Prix de vente honoraires TTC exclus 380 000 €
Honoraires TTC à la charge acquéreur 3 %
Charges 250 €
Taxe foncière annuelle 1 400 €

Simulation

Calcul des mensualités
* Champs obligatoires
GILLIOT Agence