+17
Hangenbieten (67980)

Maison 5 pièce(s) 3 chambre(s) 118.85 m²

1
288 000 €
Réf V3480062329

3%.COM à HANGENBIETEN - Maison d’habitation d’environ 118 m² à rénover.
Une dépendance, un espace atelier et une cour complètent ce bien.
Le tout sur une parcelle de 4,65 ares.

IDÉAL FAMILLE OU ARTISAN !

Vous recherchez un bien à rénover, à façonner selon vos envies, tout en profitant de la qualité de vie d’un village paisible ?

Alors n’hésitez plus et venez découvrir ce bien plein de potentiel !

Composition :
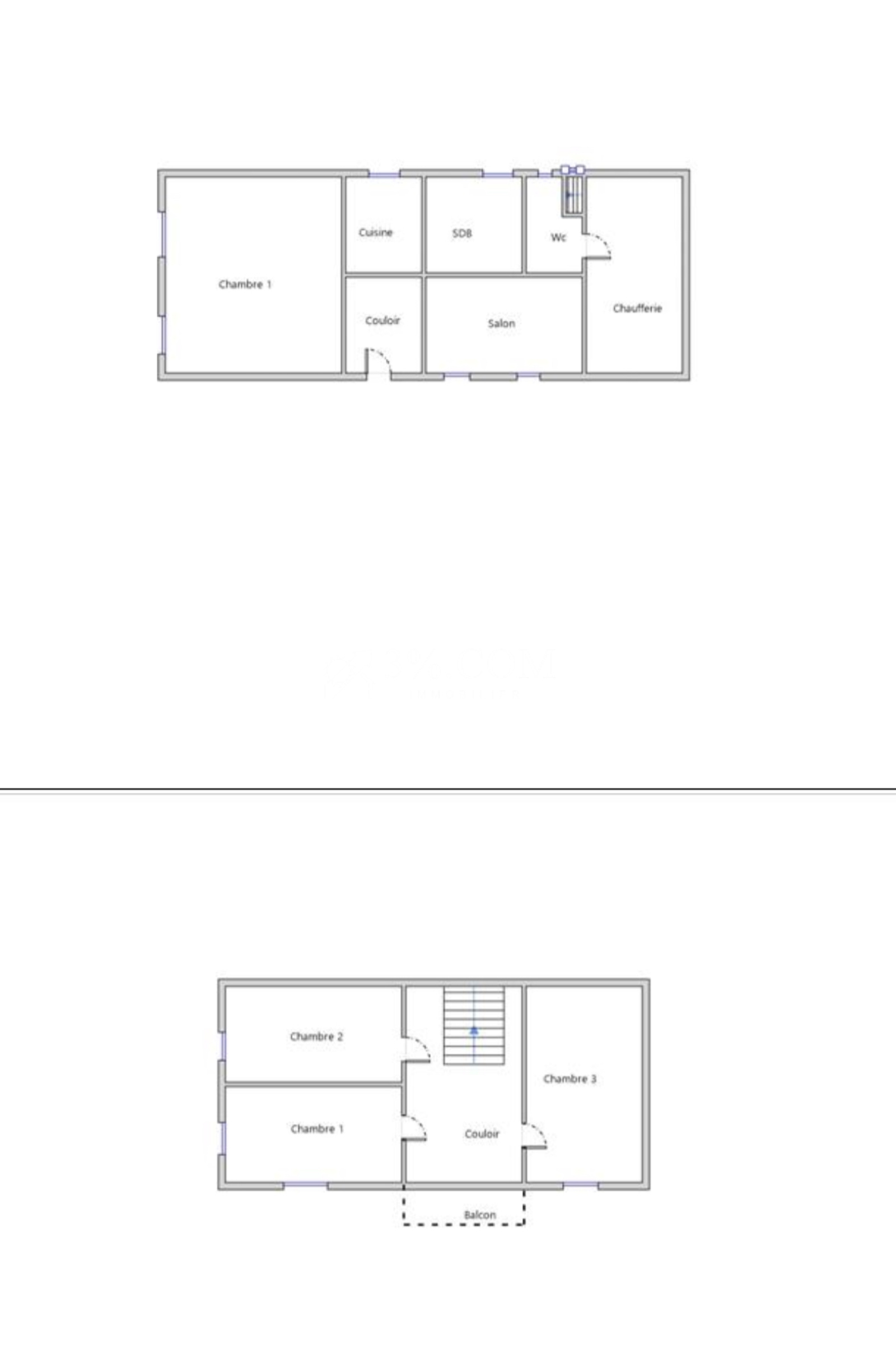
Au rez-de-chaussée :
- 1 entrée / couloir.
- 1 cuisine.
- 1 salon / séjour d’environ 23 m².
- 1 toilette séparé.
- 1 salle d’eau.
- 1 salle à manger ou chambre d’environ 22 m².

Au premier étage :
- 3 chambres (13 m², 10 m², 17 m²).
- 1 accès au comble.

Extérieur :
- 1 cave.
- 1 espace atelier.
- 1 grande dépendance.

Autres informations :
- Environnement calme.
- La grande dépendance offre de multiples possibilités (rangements, atelier, stockage, etc.).
- Grande cour permettant d’accueillir plusieurs véhicules.
- Bien à rénover (isolation, chauffage, électricité, cuisine, etc.).
- Fenêtres double vitrage PVC, volets bois.
- Chauffage + eau chaude au fioul (chaudière).
- DPE : G.

- Taxe foncière : 601€



— Principales distances :
Truchtersheim : 23 min, 15 km.
Oberhausbergen : 16 min, 9 km.
Strasbourg : 20 min, 16 km.
Geispolsheim : 14 min, 10 km.

Contactez Célia au 07.78.12.20.62
Du lundi au samedi de 9h00 à 19h00.
Agent Commercial en Immobilier, inscrit au RSAC Strasbourg N° 809 126 998.

Agence ROTH IMMOBILIER, RCS 803 863 638, franchisé 3%.COM.
Réseau national à honoraires réduits : 3 % TTC.
Annonce proposée par un agent commercial.

Annonce proposée par un agent commercial


Les informations sur les risques auxquels ce bien est exposé sont disponibles sur le site Géorisques

Bilan énergétique

Diagnostics énergetiques
A propos de ce bien Caractéristiques de ce bien
  • Surface 118,85 m²
  • carrez 118,85 m²
  • séjour 22,64 m²
  • 3 chambre(s)
  • 1 salle(s) d'eau
  • construit en 1947
  • Chauffage individuel : panneaux rayonnant (fioul)

Financier

Informations financières
Prix de vente honoraires TTC inclus 288 000 €
Prix net vendeur 280 000 €
Prix de vente honoraires TTC exclus 280 000 €
Honoraires TTC à la charge acquéreur 2,86 %

Simulation

Calcul des mensualités
* Champs obligatoires
MANGIN Agence