+10
Pordic (22590)

Maison 6 pièce(s) 4 chambre(s) 136 m²

5960 m²
391 400 €
Réf V3550026168

Stéphanie MIOSSEC, votre conseillère locale sur PORDIC et ses environs, vous propose ce bien situé à PORDIC -

Au calme, à 5 min des plages de Binic et du bourg de Pordic, belle propriété, cour carrée, sur 5 960m2 de terrain

Cet ancien corps de ferme est composé d’une partie habitée et rénovée de 136m2 avec :

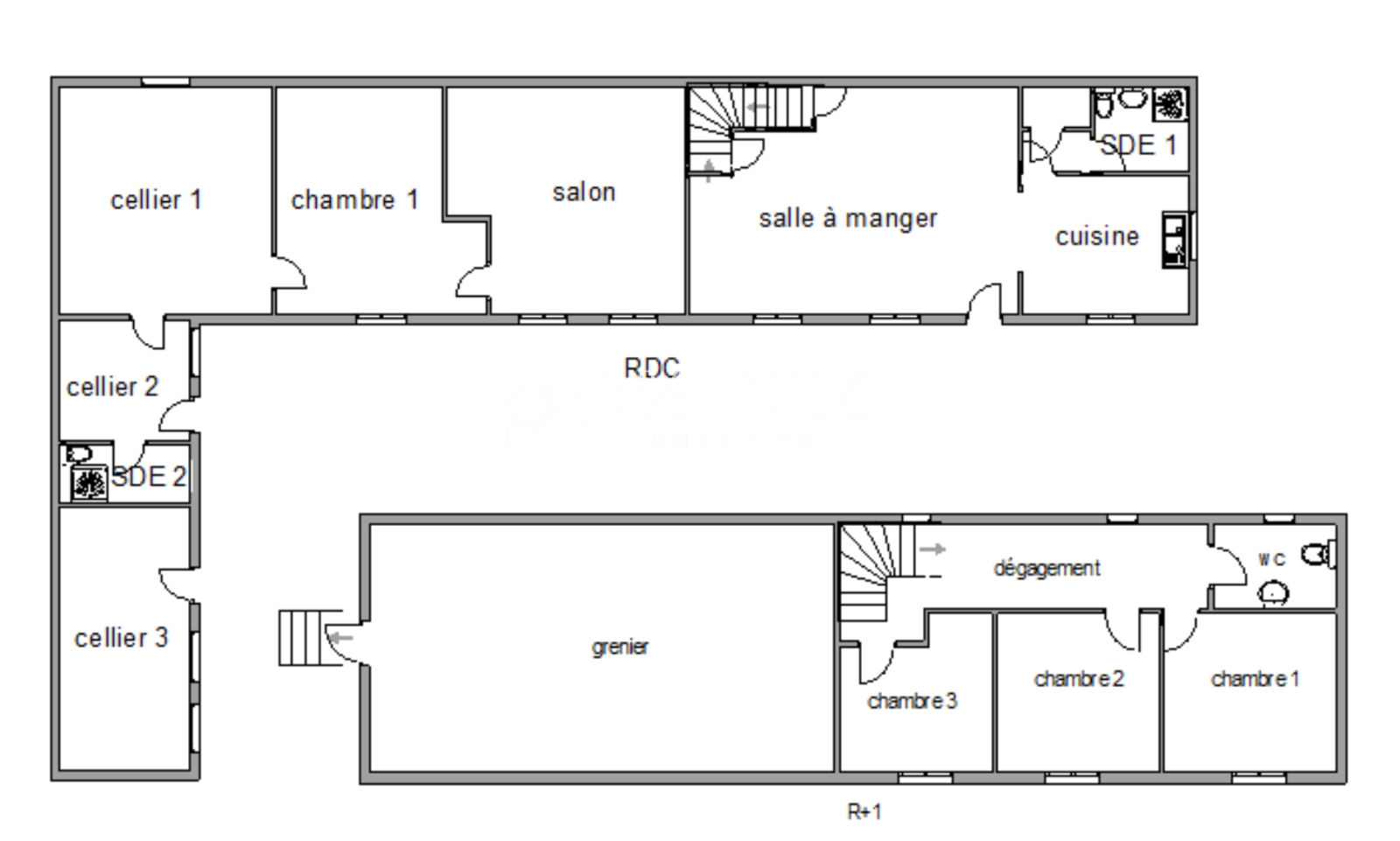
Au rez-de-chaussée, partie cuisine/salle à manger de 46m2, salon disposant d’une cheminée avec insert, une chambre et une salle d’eau

A l’étage : un pallier dessert trois chambres et une salle d’eau

A l’extérieur, de nombreuses dépendances en pierre à rénover et des hangars permettent d’envisager la création d’une activité professionnelle -

Vidéo de présentation disponible sur demande -

Honoraires 3% TTC de la valeur du bien, les honoraires sont à la charge de l'acquéreur. Pour découvrir cette maison, contactez votre conseillère, Stéphanie MIOSSEC EI au 07 81 57 59 65 - RSAC de St Brieuc n° 877 562 496 - 3%.COM immobilier : réseau national à honoraires réduits à 3% TTC -

Annonce proposée par un agent commercial


Les informations sur les risques auxquels ce bien est exposé sont disponibles sur le site Géorisques

Bilan énergétique

Diagnostics énergetiques
A propos de ce bien Caractéristiques de ce bien
  • Surface 136 m²
  • terrain 5 960 m²
  • 4 chambre(s)
  • construit en 1900
  • cuisine américaine (équipée)
  • 2 niveau(x)
  • terrasse

Composition

Composition de ce bien

Rez-de-chaussée

  • cuisine 12 m²
  • salle d'eau 3.4 m²
  • salon/sejour 35 m²
  • chambre 21 m²
  • salon 27 m²

Etage 1

  • chambre 8 m²
  • chambre 8.5 m²
  • chambre 8.6 m²
  • salle d'eau 1 m²

Financier

Informations financières
Prix de vente honoraires TTC inclus 391 400 €
Prix net vendeur 380 000 €
Prix de vente honoraires TTC exclus 380 000 €
Honoraires TTC à la charge acquéreur 3 %
Taxe foncière annuelle 985 €

Simulation

Calcul des mensualités
* Champs obligatoires
MIOSSEC Agence