+17
Eckwersheim (67550)

Maison 6 pièce(s) 3 chambre(s) 136 m²

1
7.5 m²
2
279 000 €
Réf V1000062312

3%.COM - à ECKWERSHEIM, corps de ferme composé d'une maison d'habitation de 136m² à rafraîchir en totalité et d’une dépendance (hangar) d’environ 170m², cour, petit jardin, garages, cave et de nombreux espaces de stockage, Le tout sur une parcelle de 7,50ares.

 

!!! IDÉAL INVESTISSEURS OU ARTISANS !!!

 

--- Vous recherchez un bien à rénover, à transformer à vos goûts, la qualité de vie d'un village de l’eurometropole , alors n'hésitez pas et venez visiter ce bien.

 

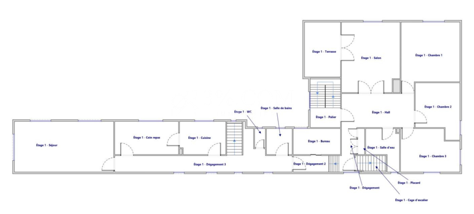
--- BÂTIMENT 1 (maison d’habitation rénovée en 1975 à rafraîchir):

-- Au rez-de-chaussée:

- 1 entrée donnant accès au 1er étage.

- 1 garage triple (sortie côté rue).

 

-- Au premier étage:

- 1 entrée/couloir donnant accès au Bâtiment 2 en demi-niveau haut..

- 1 cuisine indépendante avec salle à manger attenante.

- 1 salon/séjour.

- 1 wc séparé.

- 1 salle de bain.

- 1 pièce/bureau.

 

--- BÂTIMENT 2 (extension des années 80 du Bâtiment 1):

-- Au rez-de-chaussée:

- 1 entrée donnant accès au 1er étage.

- 1 garage double (sortie côté cour).

- 1 grande pièce de stockage + chaufferie.

- 1 wc.

- 1 douche.

 

-- Au premier étage:

- 1 grand dégagement.

- 1 couloir équipé de rangements donnant accès au 1er étage du bâtiment 1 en demi-niveau bas ainsi qu’au 2ème étage (comble aménageable).

- 1 petit salon avec accès à une terrasse couverte.

- 1 pièce d’eau équipée d’un wc et d’un lavabo.

- 3 chambres.

 

-- Au deuxième étage:

- 1 grand comble aménageable.

 

--- BÂTIMENT 3 (hangar):

- 1 grand espace de stockage d’environ 170m² avec accès à un petit jardin.

 

-- À l'extérieur:

- Une grande cour pouvant accueillir plusieurs véhicules.

 

-- Autres informations:

- Bien à rafraîchir et/ou à rénover.

- Possibilité de créer des logements distincts - idéal pour investisseurs ou artisans.

- Fenêtres double vitrage bois

- Chaudière fioul.

- DPE: G.

 

-- Principales distances:

Schilt.Parc Euro Entrep: 15 min, 16 km.

Strasbourg centre: 24 min, 20 km.

Saverne: 30 min, 39 km.

Brumath: 9 min, 7 km.

Centre commerciale Cora Mundo : 10 min, 5 km

 

--Contactez Sébastien au 03 88 69 62 46 ou 06 62 39 00 28.

Du lundi au samedi de 9h00 à 19h00.

Agent Commercial en Immobilier, inscrit au RSAC Strasbourg No 797 569 951.

-- Agence Immobilière ROTH IMMOBILIER Sarl, franchisé 3%.COM, RCS 803 863 638.

-- Agence et vitrines à Hochfelden, siège à Gimbrett-Kochersberg.

-- Réseau national à honoraires réduits: 3% TTC.

Annonce proposée par un agent commercial


Les informations sur les risques auxquels ce bien est exposé sont disponibles sur le site Géorisques

Bilan énergétique

Diagnostics énergetiques
A propos de ce bien Caractéristiques de ce bien
  • Surface 136 m²
  • carrez 136 m²
  • terrain 7,50 m²
  • 3 chambre(s)
  • 1 salle(s) de bain
  • construit en 1959
  • cuisine séparée (équipée)
  • Chauffage central : radiateur (fioul)
  • 2 garage(s)
  • exposition Sud
  • 2 niveau(x)
  • vue COUR

Financier

Informations financières
Prix de vente honoraires TTC inclus 279 000 €
Prix net vendeur 270 900 €
Prix de vente honoraires TTC exclus 270 900 €
Honoraires TTC à la charge acquéreur 2,99 %

Simulation

Calcul des mensualités
* Champs obligatoires
BELNY Agence