+12
Wilwisheim (67270)

Maison 5 pièce(s) 3 chambre(s) 101 m²

1
1
176 000 €
Réf V4670058487

VENDU - 3%.COM. EXCLUSIVITE - A proximité de Hochfelden, au centre de WILWISHEIM, venez découvrir cette maison construite en 1985 de 92m2 avec jardin sur une parcelle de 3,98 ares

- Cette maison à rénover / rafraîchir propose 3 chambres, un bureau et 2 salles de bain.

- Située en impasse dans un environnement au calme proche de l'église

- Vous serez surpris par ses volumes et son jardin!

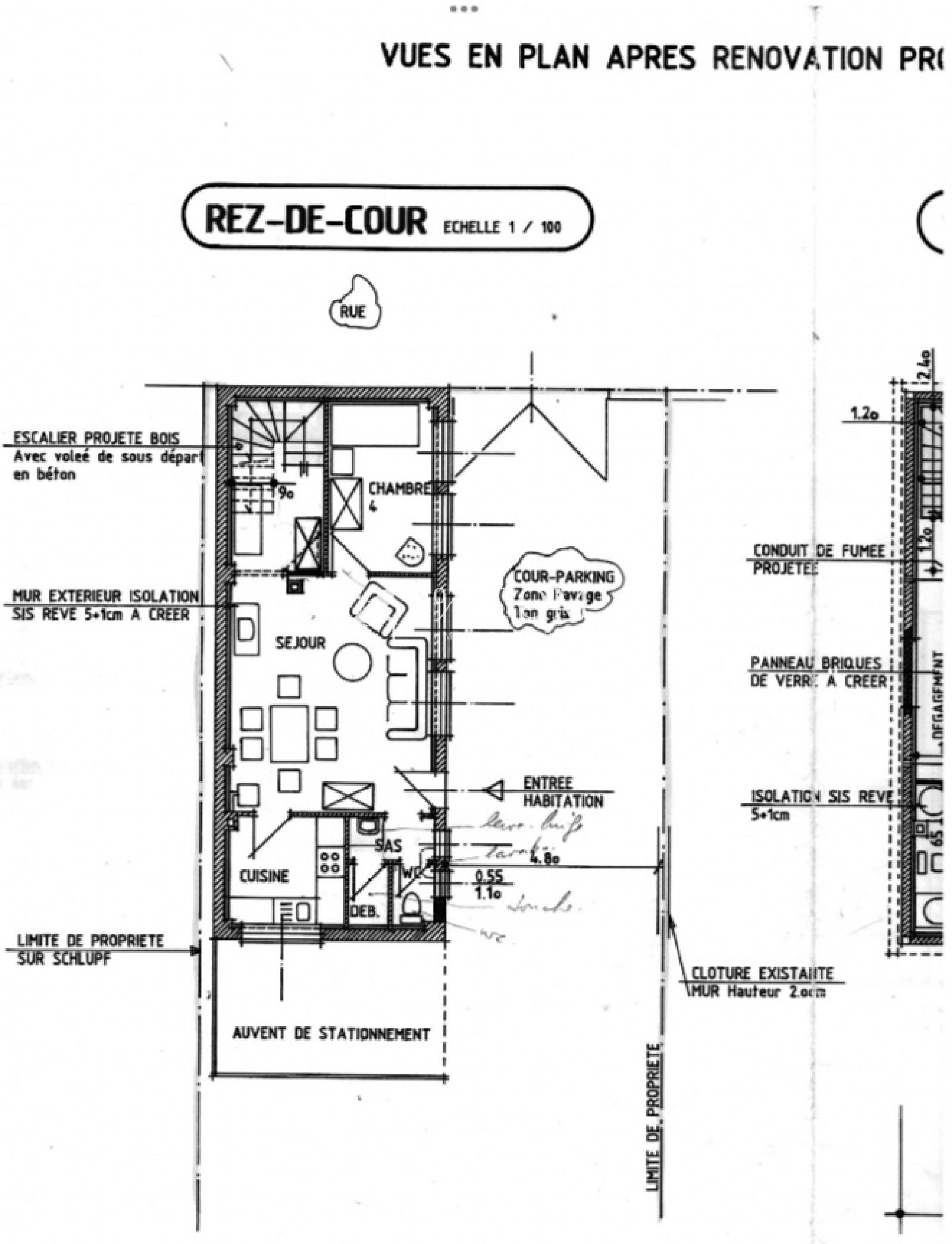
-- Au rez-de-chaussée:

- 1 salon/salle à manger ( 34m2)

- 1 cuisine aménagée et semi équipée

- 1 bureau

- 1 salle d'eau avec douche et toilette

- 1 dégagement

-- Au 1er étage:

- 3 chambres ( 13m2, 9,85m2 et 9,06m2)

- 1 salle de bain avec baignoire et toilette (accès grenier isolé au sol)

--- Informations diverses:

- chauffage électrique (radiateurs + accumulateur)

- prévoir travaux : revêtements, radiateurs plus performants , ajout garage/cabane jardin,.... etc

- Isolation intérieure et double vitrage PVC

- Taxe foncière : 363€

- Pas d'amiante ni plomb

- Pas de cave ni garage !!


--- Principales distances: Hochfelden: 7 min, 6km, Truchtersheim: 14 min, 14 km. Oberhausbergen: 25 min, 23 km. Schilt. Parc Euro Entrep: 18 min, 26 km. Strasbourg-centre: 23 min, 31 km. Saverne: 17 min, 16 km. Brumath: 12 min, 12 km


-- Contactez Laura ROTH au 07 70 13 31 52. Agent salarié en Immobilier, inscrite à la CCI Strasbourg n°ADC 6701 2021 000 002 469

Du lundi au samedi de 9h00 à 19h00.

-- Agence Immobilière 3%COM ROTH IMMOBILIER Sarl,, RCS 803 863 638.

-- Agence et vitrines à Hochfelden, siège à Gimbrett-Kochersberg.

-- Réseau national à honoraires réduits: 3% TTC.

Annonce proposée par un agent commercial

Bilan énergétique

Diagnostics énergetiques
A propos de ce bien Caractéristiques de ce bien
  • Surface 101 m²
  • carrez 92,28 m²
  • séjour 34 m²
  • 3 chambre(s)
  • 1 salle(s) de bain
  • 1 salle(s) d'eau
  • construit en 1985
  • Chauffage individuel : radiateur (electrique)
  • 2 niveau(x)

Financier

Informations financières
Prix de vente honoraires TTC inclus 176 000 €
Prix net vendeur 170 000 €
Prix de vente honoraires TTC exclus 170 000 €
Honoraires TTC à la charge acquéreur 3,53 %
Taxe foncière annuelle 363 €

Simulation

Calcul des mensualités
* Champs obligatoires
ROTH Agence