+25
Toul (54200)

Immeuble 180 m² 3 etage(s)

3
165 400 €
Réf 1620

3%.COM Lorraine Immo, Jérôme RUFFIN vous présente en exclusivité cet immeuble lumineux et parfaitement situé à Toul, à deux pas des écoles, commerces, maison médicale, transports et de toutes les commodités du quotidien.

Cet immeuble, idéal pour un investissement locatif, se compose comme suit :

  • RDC – F2 de 37,70 m²
    Séjour/cuisine de 22.73m², WC de 0.65m², chambre de 11,06m² , salle d'eau de 3.26 m²
    Loyer : 450 € dont 10 € de charges
    Fin de bail : 01/01/2027 (tacite reconduction)
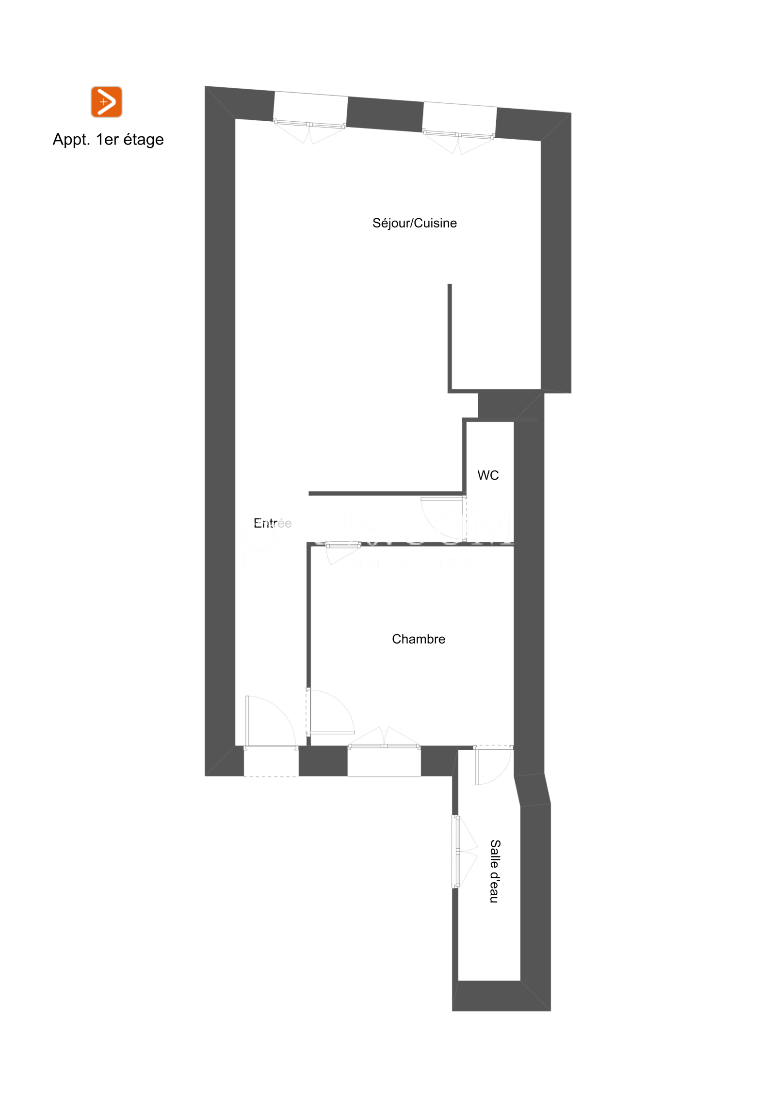
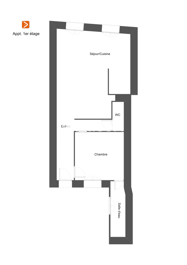
  • 1er étage – F2 de 50,34 m²
    Séjour/cuisine de 26,38m², entrée de 6.92m², WC de 1.84m², chambre de 11,45m², salle de douches de 3.75m², balcon
    Loyer : 500 € dont 10 € de charges
    Fin de bail : 15/01/2026 (tacite reconduction)
  • 2e étage – F3 de 50,34 m²
    Séjour/cuisine de 26,38m², entrée de 6.92m², WC de 1.84m², chambre de 11,45m², salle de douches de 3.75m², balcon
    Loyer : 590 € dont 10 € de charges
    Fin de bail : 10/03/2027 (tacite reconduction)


Les plus de cet immeuble

  • Studio sous combles (23 m² hab. / 33 m² au sol) à aménager, avec balcon → Potentiel locatif : 350 € HC après travaux
  • Cagibi individuel pour chaque logement
  • Grande cave de 65 m²
  • Cour de 11 m²
  • Compteurs eau et électricité individuels
  • Chauffage électrique individuel
  • Toiture refaite en 2016
  • Tout-à-l’égout


Informations complémentaires

  • Taxe foncière : 1 725 €
  • Un investissement rare sur le secteur, avec un très bon potentiel de rentabilité et des aménagements complémentaires possibles.

Envie d’en savoir plus ou de visiter ?
Une visite virtuelle 360° est disponible pour ce bien. N'hésitez pas à me contacter pour obtenir le code d'accès.

Contactez Jérôme RUFFIN – 3%.COM Lorraine Immobilier
Tél. : 06 80 96 26 18

Agent commercial – RSAC NANCY n° 880 267 000
Annonce proposée par un agent commercial

Annonce proposée par un agent commercial


Les informations sur les risques auxquels ce bien est exposé sont disponibles sur le site Géorisques

Bilan énergétique

Diagnostics énergetiques
A propos de ce bien Caractéristiques de ce bien
  • Surface 180 m²
  • construit en 1948
  • Chauffage individuel : radiateur (electrique)
  • 4 niveau(x)
  • 3 étage(s)
  • cave
  • interphone

Financier

Informations financières
Prix de vente honoraires TTC inclus 165 400 €
Prix net vendeur 160 000 €
Prix de vente honoraires TTC exclus 160 000 €
Honoraires TTC à la charge acquéreur 3,38 %
Taxe foncière annuelle 1 725 €

Simulation

Calcul des mensualités
* Champs obligatoires
RUFFIN Agence