+15
Saint-Avold (57500)

Maison 7 pièce(s) 2 chambre(s) 98 m²

1
385 m²
2
74 500 €
Réf 532

En exclusivité, L'agence 3%.Com Immobilier, Séverine Boucher, vous propose cette maison des années 1900, cachée dans un écrin de verdure à St Avold.

A 30 mns de METZ, Sarreguemines ou Sarrebruck, à 20 mn de Forbach et à 1h du Luxembourg, le bien est à 5 mn du centre commercial CORA et de la 4 voies. Tous commerces à proximité.

Amoureux de la rénovation et des gros travaux cette maison est faite pour vous. Elle ne demande qu'à accueillir une nouvelle famille. Elle est atypique et a un fort potentiel.

Posée sur un terrain de 385m² ce bien de 98m² habitable n'attend plus que vous !

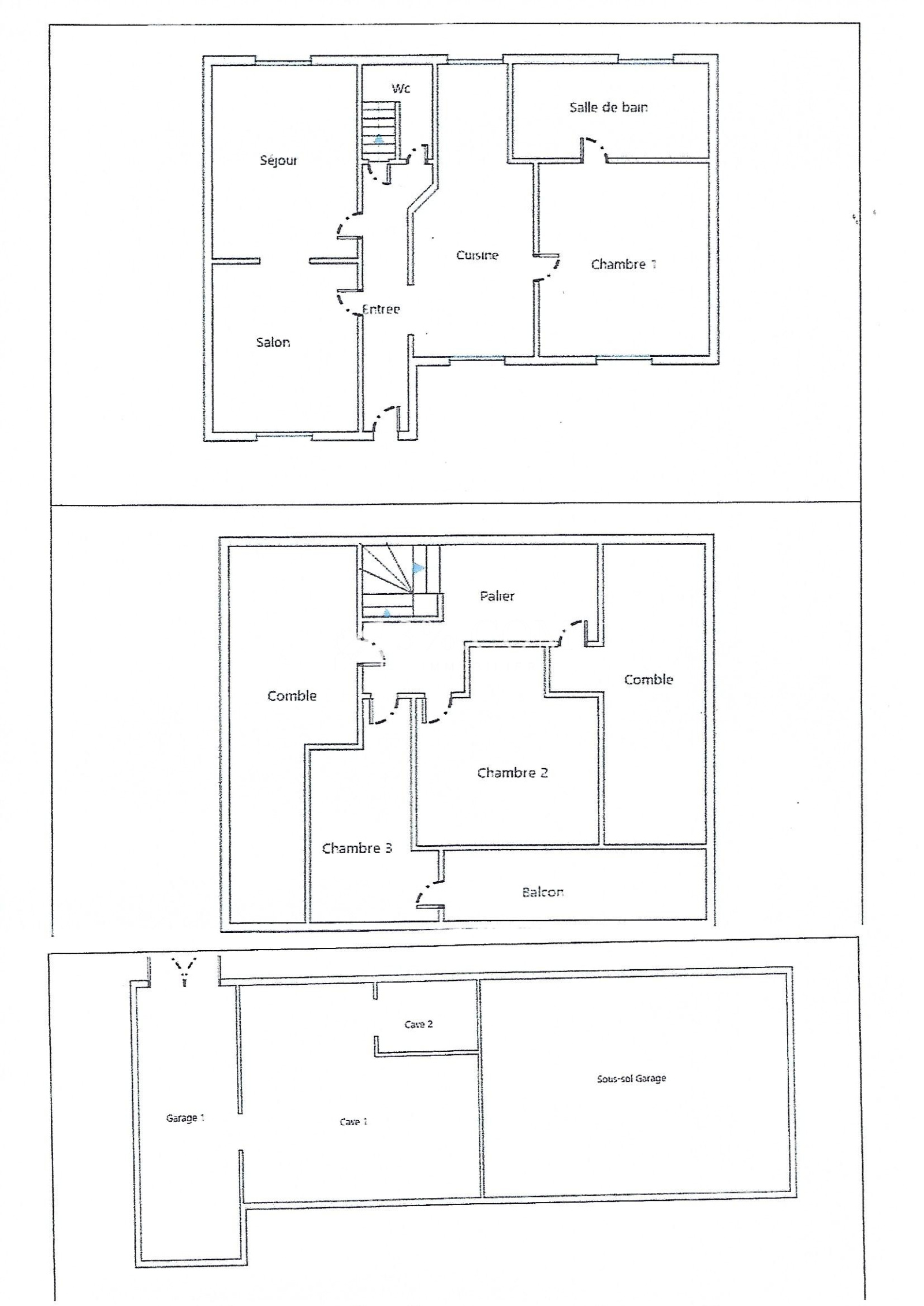
Une entrée déssert de chaque côté des pièces de vie.

Une cuisine de 14m² environ non équipée qui est complétée par une pièce d'environ 14m².

une SDE et un wc séparé.

Un salon d'environ 10,5m² prolongé par une salle à manger de 14m².

A l'étage un grand palier aménageable en dressing ou bureau nous améne à une chambre de 11,50m² donnant sur un balcon. Et une autre pièce ou chambre d'enfant d'environ 8m². Cet espace peut être aggrandi en aménageant les combles de chaque côté si besoin. Ou bien créer une troisièle chambre en exploitant le palier et les combles (voir schéma)

Ce bien possède également 2 garages fermés d'une superficie de 33m² en tout.

Au niveau inférieur de la maison : un très grand espace d'environ 60m²avec une dalle béton et un accès par une porte cochère d'environ 2,30m de haut. et des pièces avec des ouvertures permet de créer un atelier, un lieu de stockage ou même pouvoir créer un appartement indépendant pourquoi pas.

Double vitrage, chauffage au gaz de ville. Tout à l'égout. Taxe fonciere 508€

Cette charmante maison n'attend plus que vous pour retrouver de sa superbe et ravir ses nouveaux propriétaires. N'attendez plus, applez moi

Séverine Bocuher 0633501366

Rsac Nancy 533 291 894

Annonce proposée par un agent commercial

Bilan énergétique

Diagnostics énergetiques
A propos de ce bien Caractéristiques de ce bien
  • Surface 98 m²
  • terrain 385 m²
  • 2 chambre(s)
  • 1 salle(s) d'eau
  • construit en 1900
  • cuisine séparée
  • Chauffage individuel : chaudière (gaz de ville)
  • 2 garage(s)
  • 1 niveau(x)

Financier

Informations financières
Prix de vente honoraires TTC inclus 74 500 €
Prix net vendeur 70 000 €
Prix de vente honoraires TTC exclus 70 000 €
Honoraires TTC à la charge acquéreur 6,43 %

Simulation

Calcul des mensualités
* Champs obligatoires
BOUCHER Agence